House
ROSCANVEL (29570)
- 120 m²
 - 4 room(s)
 - 3 bedroom(s)
 - 1424 m²
 
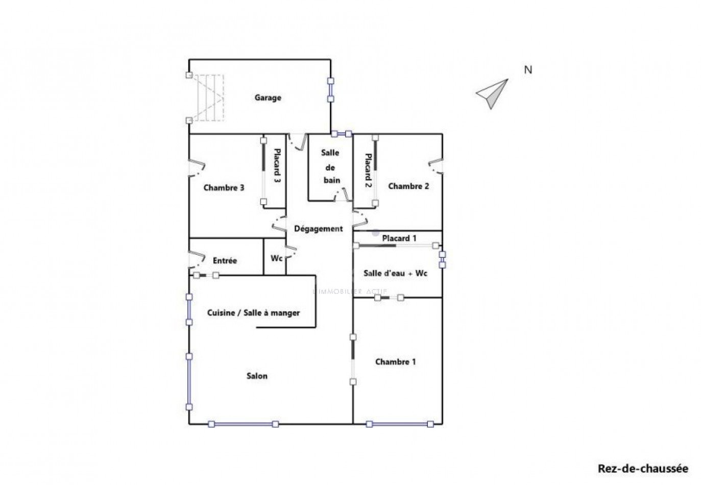
Single-story house with panoramic sea view – Just a stone's throw from the coast! Have you dreamed of a house facing the sea, where each day opens onto an exceptional panorama? This single-story property, located just a few steps from the shore, offers you a rare and privileged living environment. It features an entrance leading to a large, bright living room with a lounge and open kitchen, ideal for sharing convivial moments. On the night side, you'll find three bedrooms, including a master suite with a private shower room and toilet for greater comfort and privacy. A separate bathroom, a second toilet, and plenty of storage space complete the property. An attached garage completes the amenities. In terms of comfort, the house benefits from a Class C energy rating, a guarantee of controlled consumption. It is equipped with a heat pump, ensuring thermal comfort and energy savings all year round. A rare property on the market, perfect as a primary or secondary residence, where peace and quiet, immediate proximity to the sea and a modern interior designed for your well-being combine. Contact me today to arrange a viewing and let yourself be seduced by this unique environment!
* Agency fee: 4% including VAT at the buyer's expense (420 000 € excluding fees).
	









































	