Maison
SAINT AUBIN LES FORGES (58130)
- 88 m²
- 5 pièce(s)
- 3 chambre(s)
- 544 m²
Située à Saint-Aubin-des-Forges, cette charmante maison allie confort, modernité et potentiel d’évolution.
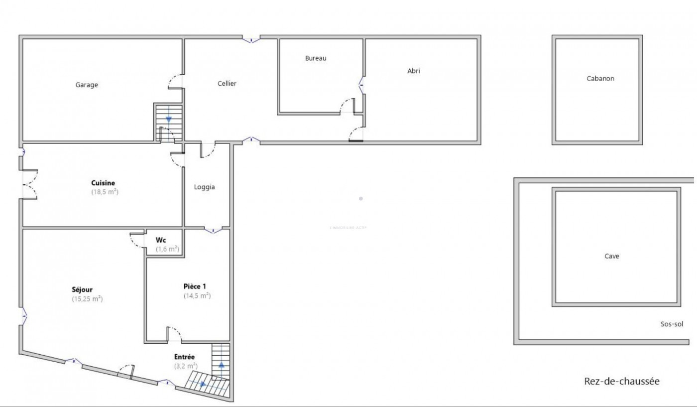
Dès l’entrée, vous découvrirez un séjour chaleureux et convivial, sublimé par un poêle à bois, idéal pour partager de précieux moments en famille ou entre amis. La cuisine indépendante, neuve, aménagée et entièrement équipée, séduira les amateurs de cuisine. Une agréable cuisine d’été attenante prolonge l’espace de vie et vous permettra de profiter pleinement des beaux jours.
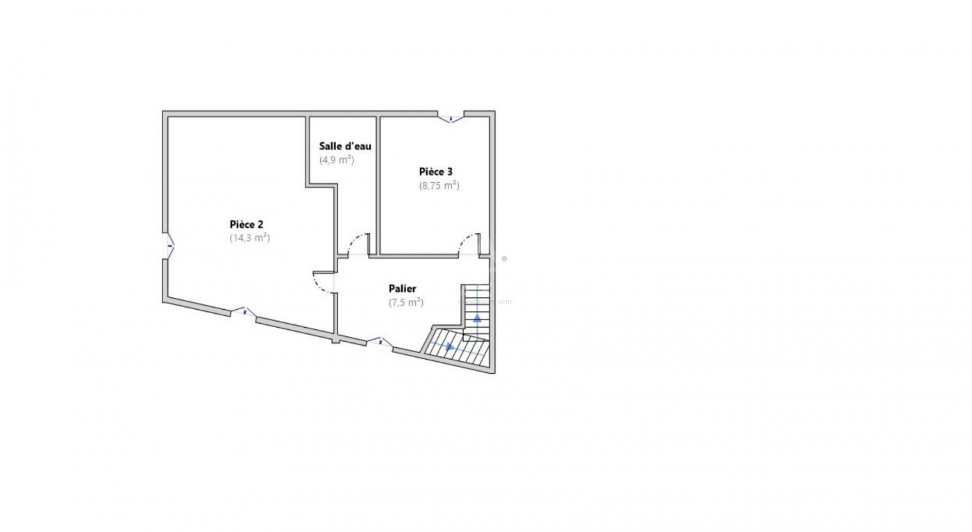
L’espace nuit se compose de trois chambres lumineuses, dont une suite parentale avec salle d’eau privative. Une seconde salle d’eau ainsi que deux WC viennent compléter cet espace, garantissant confort et praticité au quotidien. Les combles aménageables offrent un beau potentiel supplémentaire : bureau, salle de jeux ou chambre additionnelle selon vos besoins.
La toiture, entièrement refaite en 2023, constitue un véritable atout et vous assure tranquillité pour de nombreuses années.
À l’extérieur, le jardin privatif, véritable havre de paix, invite à la détente et aux repas en plein air. Vous profiterez également d’une loggia abritée et d’une cabane de jardin. Un garage double permet de stationner deux véhicules en toute sécurité, tandis qu’une cave de 21 m² et un grenier offrent de généreux espaces de rangement.
Chauffage individuel, fenêtres à double vitrage et toiture récente viennent parfaire les prestations de cette maison soigneusement entretenue.
Une belle opportunité à découvrir sans tarder. Contactez-moi dès aujourd’hui pour organiser une visite et laissez-vous séduire par le charme de cette maison.
Contactez votre Agent AXO - L'immobilier Actif au 06 95 07 21 88, Mélanie MASSÉ (E.I) Agent Commercial 979.107.919 Nevers. Plus d'informations sur www.axo.immo (réf. 85002122301).
Honoraires à la charge du vendeur.
Les informations sur les risques auxquels ce bien est exposé sont disponibles sur le site Géorisques : https://www.georisques.gouv.fr/
* Honoraires charge vendeur.










































